今すぐ無料の会員登録で
閲覧可能物件数が
+1,442
建物
物件画像
NO IMAGE
周辺環境
QRコードをスキャンして携帯でもご覧になれます。

菱和パレス品川中延

株式会社日商ベックス蒲田売買センター
山川竜輝
お問い合わせ先: 0120-515-004

おすすめコメント

・宅配ボックス、オートロック完備!管理良好な新耐震マンションです◎
・リビングスペースに多く収納を設けており、急な来客時もすっきり見せることが出来ます。
・室内には柔らかな光が差し込み、気の質感や間接照明がアクセントになっています。

菱和パレス品川中延

中古マンション
4,990万円
  • 共益費・管理費:
    22,190円
  • 修繕積立金(月額):
    12,930円
月々の返済額:13万円台
東京都品川区二葉4丁目

都営浅草線 中延駅 徒歩 6分

NEW現地見学会おすすめ会員限定
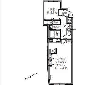
間取り
1LDK
所在階
1階
築年月
1996年03月完成
専有面積
52.33㎡(15.82坪)
今すぐ会員登録する資料請求お気に入りに追加
お問い合わせ先: 0120-515-004
電話でお問合せする
物件情報
名称
菱和パレス品川中延
価格
4,990万円(税込)
共益費・管理費
22,190円
修繕積立金(月額)
12,930円
リノベーション
あり 施工時期 2025年11月 内容 フルリノベーション(配管更新含)
所在地
東京都品川区二葉4丁目
交通

都営浅草線 中延駅 徒歩 6分

間取り
1LDK
専有面積
52.33㎡(15.82坪)
築年月
1996年03月完成
建物構造
鉄筋コンクリート造(RC)
所在階/建物階建
1階 / 5階建
総戸数/販売戸数
31戸
主要採光面
北西
現況
駐車場
あり 有料 25,000円(税込) 25,000/月
管理
管理形態:全部委託 管理人状況:日勤 管理会社:日本ハウズイング株式会社
施工会社
株式会社本州クリエイト建設
土地権利
所有権
用途地域
近隣商業地域
引渡時期
即引渡し可
備考
創業45周年 数多くのお客様に住まいをご提案してまいりました 住宅ローンをはじめお客様のライフプランに沿ったご提案を心がけております 豊富な物件情報、豊富な知識でご対応させていただきます なんでもお気軽にご相談してください キッズスペースでお子様をお待ちしております ニンテンドースイッチ、DVD、おもちゃ、絵本、ぬりえ、おりがみ お子様も楽しんでいただけます! 駐車場完備
物件情報更新日
2026年01月25日(物件情報更新日より14日以内に更新)
物件コード
21194
取引態様
仲介
建物情報
建物現況
完成済
建物名称
菱和パレス品川中延
今すぐ会員登録する資料請求お気に入りに追加
お問い合わせ先: 0120-515-004
電話でお問合せする

区画・住戸情報

株式会社日商ベックス蒲田売買センター
株式会社日商ベックス蒲田売買センター
来店・案内予約はこちら
〒144-0051
東京都大田区西蒲田7丁目18-4 フォルティーノビル7階
0120-515-004
営業時間:9:30~18:30 定休日:火曜日・水曜日
ローンシミュレーション
  • {{error}}
物件価格
4,990万円
借入予定額
万円
頭金
万円
ボーナス(1回分)
万円
返済期間
ローン金利
※ 金利参考先:三井住友銀行
金利
%

35年固定金利(フラット35)Sの 金利参考先:楽天銀行(借入90%以内)

毎月の支払額
{{repayment_price}} 円

条件がよく似た物件

外観
ロビー
防犯設備
その他設備
駐輪場
その他
その他設備
駐車場
間取図/区画図
リビング
キッチン
洗面室
トイレ
浴室
収納
収納
リビング
玄関
眺望
その他共有部
外観
間取図/区画図
リビング
キッチン
洗面室
トイレ
浴室
収納
収納
リビング
玄関
眺望
その他共有部
外観
スマートフォン版の表示に切り替える