今すぐ無料の会員登録で
閲覧可能物件数が
+1,453
建物
物件画像
NO IMAGE
周辺環境
QRコードをスキャンして携帯でもご覧になれます。

多摩川ハイム3号棟

株式会社日商ベックス蒲田売買センター
山川竜輝
お問い合わせ先: 0120-515-004

おすすめコメント

多摩川沿いにたたずむ管理体制良好の大規模マンション!
スパーも徒歩圏内で充実の生活環境です。

多摩川ハイム3号棟

中古マンション
7,480万円(7,830万円)
  • 価格変更日:
    2026年03月14日
  • 旧価格公表日:
    2025年10月30日
  • 共益費・管理費:
    18,840円
  • 修繕積立金(月額):
    6,260円
月々の返済額:19万円台
東京都大田区下丸子2丁目

東急多摩川線 武蔵新田駅 徒歩 14分

NEW現地見学会おすすめ会員限定
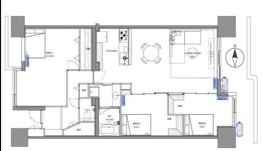
間取り
3LDK
所在階
8階
築年月
1982年04月完成
専有面積
98.14㎡(29.68坪)
今すぐ会員登録する資料請求お気に入りに追加
お問い合わせ先: 0120-515-004
電話でお問合せする
物件情報
名称
多摩川ハイム3号棟
価格
7,480万円(税込)
共益費・管理費
18,840円
修繕積立金(月額)
6,260円
リノベーション
あり 施工時期 2025年10月 内容 スケルトンからの新規フルリノベーション! ・システムキッチン・給湯器・ユニットバス(浴室換気乾燥機付・追い焚きあり)etc
その他費用
エレベーター保守費:2,270円(税込)
所在地
東京都大田区下丸子2丁目
交通

東急多摩川線 武蔵新田駅 徒歩 14分

間取り
3LDK
専有面積
98.14㎡(29.68坪)
築年月
1982年04月完成
建物構造
鉄骨鉄筋コンクリート造(SRC)
所在階/建物階建
8階 / 13階建
総戸数/販売戸数
78戸
主要採光面
現況
駐車場
あり 有料 2,400円(税込)
管理
管理形態:全部委託 管理人状況:日勤 管理会社:住商建物株式会社
施工会社
株式会社竹中工務店
土地権利
所有権
用途地域
工業地域
引渡時期
相談
備考
創業45周年 数多くのお客様に住まいをご提案してまいりました 住宅ローンをはじめお客様のライフプランに沿ったご提案を心がけております 豊富な物件情報、豊富な知識でご対応させていただきます なんでもお気軽にご相談してください キッズスペースでお子様をお待ちしております ニンテンドースイッチ、DVD、おもちゃ、絵本、ぬりえ、おりがみ お子様も楽しんでいただけます! 駐車場完備
物件情報更新日
2026年03月14日(物件情報更新日より14日以内に更新)
物件コード
19751
取引態様
仲介
建物情報
建物現況
完成済
建物名称
多摩川ハイム3号棟
今すぐ会員登録する資料請求お気に入りに追加
お問い合わせ先: 0120-515-004
電話でお問合せする

区画・住戸情報

株式会社日商ベックス蒲田売買センター
株式会社日商ベックス蒲田売買センター
来店・案内予約はこちら
〒144-0051
東京都大田区西蒲田7丁目18-4 フォルティーノビル7階
0120-515-004
営業時間:9:30~18:30 定休日:火曜日・水曜日
ローンシミュレーション
  • {{error}}
物件価格
7,480万円
借入予定額
万円
頭金
万円
ボーナス(1回分)
万円
返済期間
ローン金利
※ 金利参考先:三井住友銀行
金利
%

35年固定金利(フラット35)Sの 金利参考先:楽天銀行(借入90%以内)

毎月の支払額
{{repayment_price}} 円

条件がよく似た物件

外観
エントランス
間取図/区画図
外観
駐輪場
駐車場
エントランス
間取図/区画図
外観
駐輪場
駐車場
エントランス
スマートフォン版の表示に切り替える